Ricerca rapida
-
-
CERCA

Dalmine
VILLETTA BIFAMILIARE INDIPENDENTE

Villa Bifamiliare

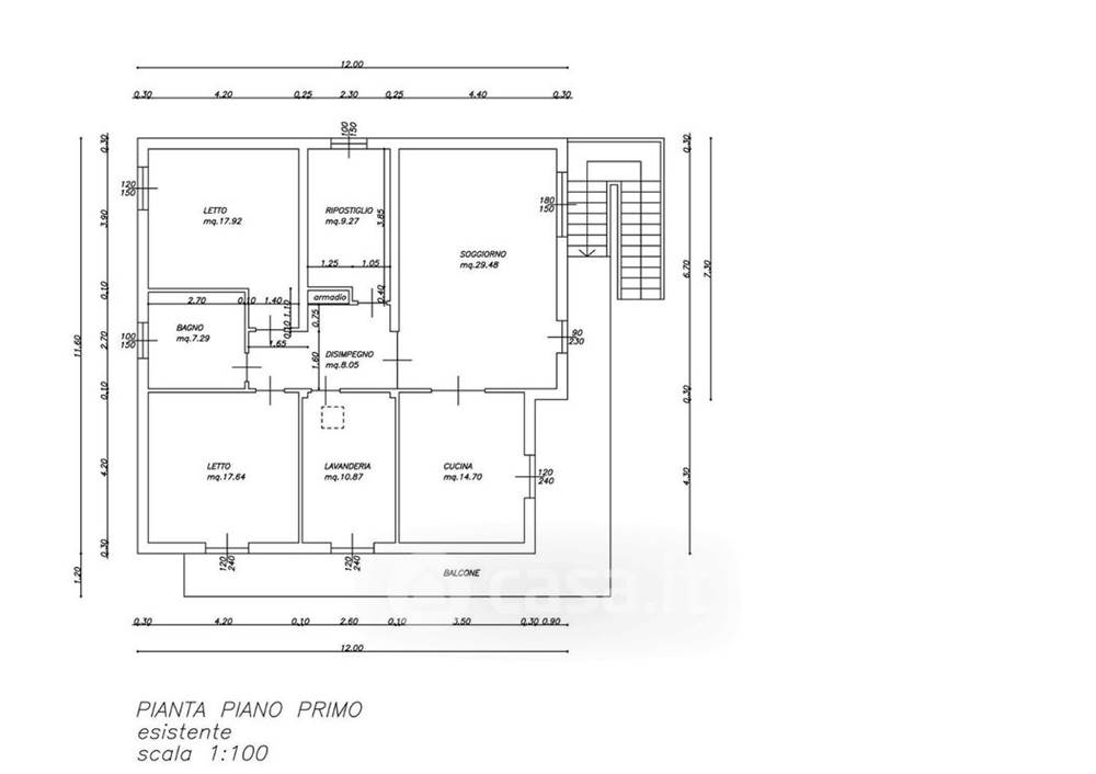
Novità; Porzione di villa bifamiliare -quadrilocale in viila-, posta al primo e ultimo piano completamente indipendente con 250 mq di giardino privato.
L'immobile, dotato di ingresso carrale e pedonale indipendente( da creare), è cosi disposto: ingresso, salone con camino, cucina abitabile, tre camere da letto, due bagni e terrazzo vivibile.
Al piano terra completano la proprietà il giardino esclusivo, l'autorimessa e il magazzino.
Immobile unico nel suo genere per metratura e ubicazione; il tetto si presenta in ottime condizioni e l'abitazione internamente è stata ristrutturata nel 2002.
Pregi; indipendenza, riservatezza, libera sui tre lati, metratura interna introvabile, spazi vivibili, giardino privato.
In caso di acquisto necessita di divisione giardino e lavori per sistemazione scala per rendere completamente indipendente la casa.
Libera subito! Per informazioni Stancheris Diego 3463289202

Caratteristiche

Codice
V006665
Prezzo
225.000,00 EUR
Mq
140
Classe
G (112)
Locali
4
Camere
3
Bagni
1
Box
1
Mq Box
15
Posti auto
2
Mq Giardino
250
Stato Immobile
Buono
Grado
Signorile
Panorama
Vista Monti
Orientamento
Sud Est
Lati Liberi
3
Giardino
Privato
Arredi
Non Arredato
Tipo Soggiorno
Salone
Tipo Cucina
Abitabile
Riscaldamento
Autonomo
Tipo Riscaldam.
Caldaia
Tipo Impianto
Radiatori
Fonte Energetica
Metano
Acqua Calda
Autonoma
Infissi
Legno Doppio Vetro
Accessori
Camino, Cancello Elettrico, Passaggio Automobilistico, Passaggio Pedonale, Porta Blindata, Ripostiglio
Cookie preference